Fixtures & Fittings

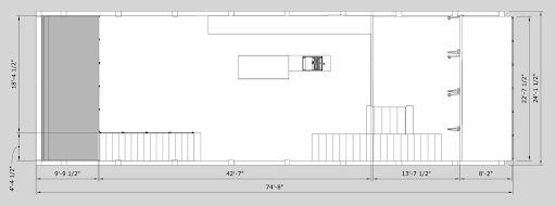
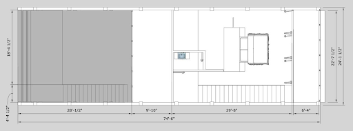
  • First Floor 18’ 4 1/2"’ W x 66’ 7” L
  • Second Floor 18’ 4 1/2” W x 56 2 1/2” L
  • Third Floor 18’ 4 1/2” W x 43’ 1” L = ft2
  • Side View 24’ 1 1/2” W x 22' 2 1/2" H
  • Generous windows
  • Kitchen: Fully equipped including a combo microwave/convection oven, combo washer/dryer, full-sized refrigerator, dishwasher, and double induction cooktop, upper and lower cabinetry, sink and disposal
  • Bath: Frosted glass shower, wall mounted toilets, sinks, faucets, and custom vanities.
  • Dining Booth: High/ low table for convertible bed and storage
  • Second floor loft with wall stairway
  • Built-in Murphy bed with storage cabinetry
  • Standing seam roof and exterior cladding
  • Interior and exterior lighting
  • Interior and exterior lighting
  • Generous storage
  • Luxury vinyl plank flooring
  • Hot water heater
  • HVAC

Options

  • Second Murphy bed
  • Murphy bed wardrobe
  • Full window wall front
  • Full window wall back
  • Porch hood front
  • Porch hood back
  • Solar Electric