Fixtures & Fittings

  • Garage 21’ 7 1/2” W x 39’ 10 1/2” L
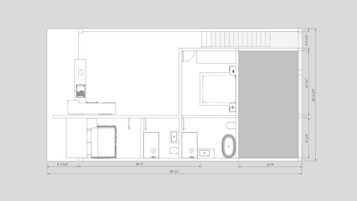
  • Apartment 26’ 6 1/2″ x 38’ 3″ L
  • Side View 10’ 7” Low Side H 27’ 1” High Side H
  • Garage Ceiling 8’1” C H
  • Apartment 8’ 10 1/2” Low Side H 16’ 2” High Side H
  • Generous windows
  • Kitchen: Fully equipped including a combo microwave/convection oven, combo washer/dryer, full-sized refrigerator, dishwasher, and double induction cooktop, upper and lower cabinetry, sink and disposal
  • Bath: Frosted glass shower, wall mounted toilets, sinks, faucets, and custom vanities.
  • Dining Booth: High/ low table for convertible bed and storage
  • Second floor loft with wall stairway
  • Built-in Murphy bed with storage cabinetry
  • Standing seam roof and exterior cladding
  • Interior and exterior lighting
  • Generous storage
  • Luxury vinyl plank flooring
  • Hot water heater
  • HVAC

Options

  • Second Murphy bed
  • Murphy bed wardrobe
  • Full window wall front
  • Full window wall back
  • Porch hood front
  • Porch hood back
  • Solar Electric