Fixtures & Fittings

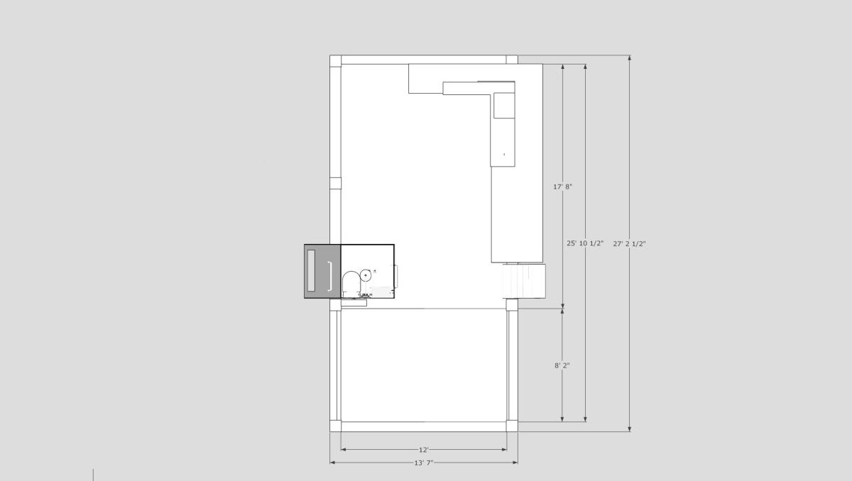
  • Downstairs is 28’ long x 13’3” wide with high side ceilings of 23’ 9 ½” and low side of 15’ 3 ½”
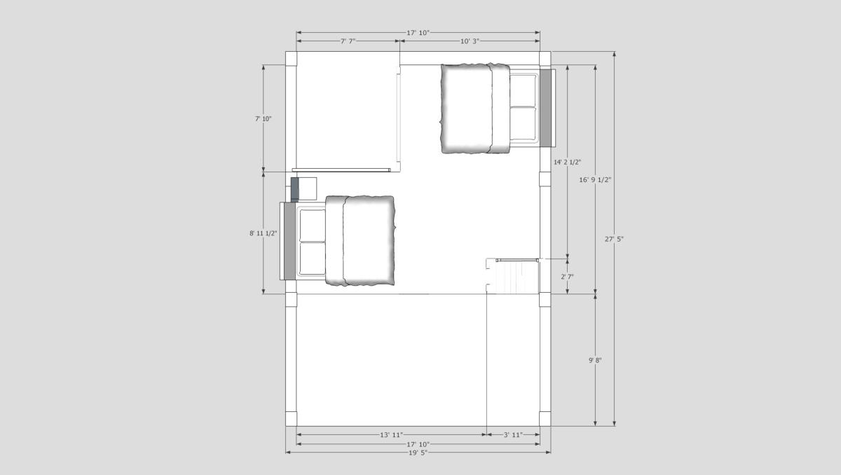
  • Upstairs is 16’9” long x 18’ wide with high side ceilings of 12’8” x low side of 5’
  • Generous windows
  • Kitchen: Fully equipped including a sink, disposal, combo microwave/convection oven, full-sized refrigerator, dishwasher, and double induction cooktop, upper and lower cabinetry, and combo washer/dryer
  • Bath: Frosted glass shower, wall mounted toilet and sink
  • Dining Booth: High/ low table for convertible bed and storage
  • Second floor loft with stairway
  • Built-in Murphy bed with storage cabinetry
  • Standing seam roof and exterior cladding
  • Interior and exterior lighting
  • Generous storage
  • Luxury vinyl plank flooring
  • Hot water heater
  • HVAC

Options

  • Murphy bed wardrobe
  • Full window wall front
  • Full window wall back
  • Porch hood front
  • Porch hood back
  • Solar Electric