Fixtures & Fittings

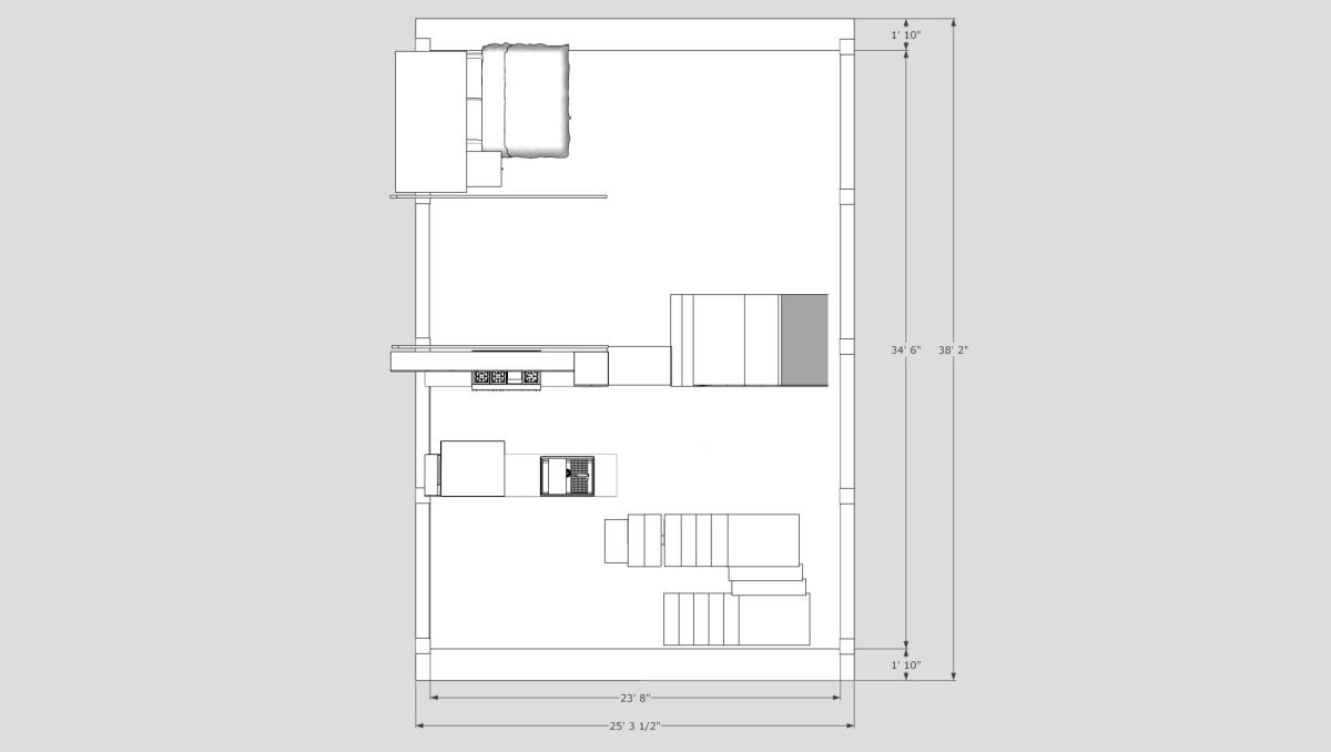
  • Downstairs is 38’ long x 24’ 2” wide with high side ceilings of 22’ 10” and low side ceilings of 15’ 8.”
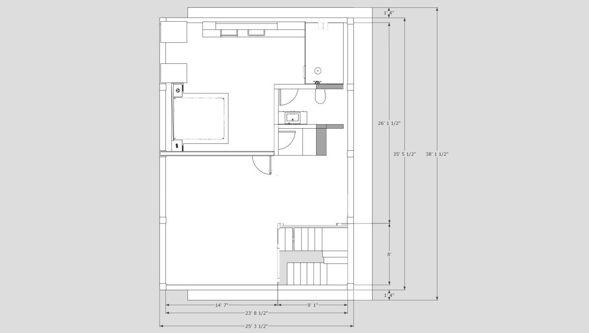
  • Upstairs is 34’ 3” long x 23’ 8 ½ ” wide with high side ceilings of 11’ 1/2” x low side ceilings of 4’ 5”.
  • Generous windows
  • Kitchen: Fully equipped including a combo microwave/convection oven, combo washer/dryer, full-sized refrigerator, dishwasher, and double induction cooktop, upper and lower cabinetry, sink and disposal
  • Bath: Frosted glass shower, wall mounted toilets, sinks, faucets, and custom vanities.
  • Dining Booth: High/ low table for convertible bed and storage
  • Second floor loft with wall stairway
  • Built-in Murphy bed with storage cabinetry
  • Standing seam roof and exterior cladding
  • Interior and exterior lighting
  • Generous storage
  • Luxury vinyl plank flooring
  • Hot water heater
  • HVAC

Options

  • Second Murphy bed
  • Murphy bed wardrobe
  • Full window wall front
  • Full window wall back
  • Porch hood front
  • Porch hood back
  • Solar Electric

Limited Exclusive Offer!

Experience Villa 1550 located near 153 E Kamehameha Ave, Unit 104-350Kahului, HI 96732. See for yourself what the future of smart, sustainable living feels like.

Needs to sale $23,680,000
Have sold $1,110,000
Make a Reservation