Fixtures & Fittings

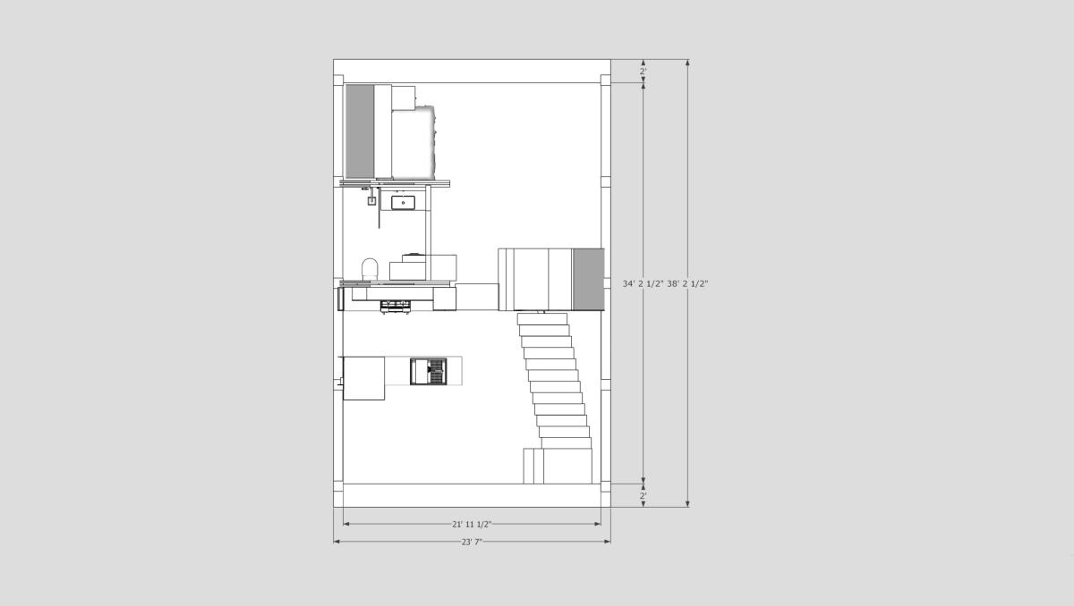
  • Downstairs is 38’ long x 18’ wide with high side ceilings of 26’ ½” and low side ceilings of 19’ 10”
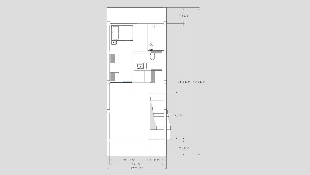
  • Upstairs is 34’7” long x 16’ wide with high side ceilings of 11’4 ½” x low side of 8’ 4 ½.’
  • Generous windows
  • Kitchen: Fully equipped including a combo microwave/convection oven, combo washer/dryer, full-sized refrigerator, dishwasher, and double induction cooktop, upper and lower cabinetry, sink and disposal
  • Bath: Frosted glass shower, wall mounted toilets, sinks, faucets, and custom vanities.
  • Dining Booth: High/ low table for convertible bed and storage
  • Second floor loft with stairway
  • Built-in Murphy bed with storage cabinetry
  • Standing seam roof and exterior cladding
  • Interior and exterior lighting
  • Generous storage
  • Luxury vinyl plank flooring
  • Hot water heater
  • HVAC

Options

  • Second Murphy bed
  • Murphy bed wardrobe
  • Full window wall front
  • Full window wall back
  • Porch hood front
  • Porch hood back
  • Solar Electric